现在端街46号是尚志幼儿园所在,百年前是中东铁路公司规划招租的第969号地块。当时端街从东至西两侧共划分18个地块,第969地块为端街路南西起第二个地块,东邻第968号地块,西邻第970地块,南靠第971号地块,整个地块呈长方形,临端街一面长21.4米(现20.5米),进深42.8米,面积910余平米(注:根据当时建筑图纸上标注的尺寸沙绳换算,会与实际尺寸有少许出入)。

端街西头与经纬街交口现状

现端街46号尚志幼儿园
1902年,中东铁路公司开始出租中国大街区域地段,先招租的是中国大街与新城大街之间区段,称老埠头区。后招租的中国大街与炮队街之间区段称新埠头区。端街最初被称为“新埠头八道街(Восьмая Новопристанская улица)”,1904年才正式定名为“短街(Короткая)”,1927年由短街的谐音改称端街。

1903年端街地块号

第969号地块位置示意图
1903年,一位叫Н.С.尤尔琴科(Н.С.Юрченко)的侨民租赁下第969号地块,成为此地块第一任业主。
1903年10月17日,他向中东铁路建筑工程局松花江工段工程师П.И.库兹涅佐夫提出了建房申请并附上建筑图纸,获得批准。
尤尔琴科建造的房屋是一座木制平房,位于此地块临端街一侧,长11.2米,宽8.2米,建筑面积92平米,分左右两个套房,左侧套房有两个房间、一个厨房、一个小门厅;右侧套房有两个房间、一个厨房。室外建有男女厕所各一座。这座木屋是第969号地块上的第一座建筑物。

1903年尤尔琴科的建房申请,这份文件也是第969地块最早的历史遗存

第一座木屋立面图
为俄罗斯传统木构居住建筑风格,建筑的主入口前设有木质挡风门斗,门扇和外墙窗口以及檐口均有木质装饰构件,其上应罩有不同色彩,使其建筑立面更加精美艳丽,典雅别致。

第一座木屋平面图

第一座木屋内的取暖方式为俄式火墙
1906年,尤尔琴科又申请建造了第二座房屋,也是一座木制平房,位于地块内最里面,长12.8米,宽8.5米,建筑面积108平米。室内格局与第一座木屋相同。这也是一座传统俄罗斯木屋风格的房子,主门设在房屋东侧,建有门斗。

1906年建的第二座木屋立面图和平面图
1909年,尤尔琴科向哈尔滨自治会建筑科提交申请,将第一座木屋外包砌砖墙。木屋变成砖房。此时,地块内东、西侧还建有五个板棚。

1909年第一座木屋外包砖墙的设计图
时间到了1918年,此时的业主已经变更为Г.А.阿洛诺夫(Г.А.Аронов),地块总平面图显示,已经有五座房屋、一个小棚子了。1903年建造的平房还在。1906年所建的大木房经过几次改建,变成了一座20余米的小木房。院内西侧有一座木房。这一年,业主向市公议会建筑科申请在地块东边界一侧建造两座砖房,原计划是在端街一侧建造一座门市房,院内建造一座带走廊,有8个房间的长砖房,最终兴建了门市房,长砖房没有建成,而是建了一座临时木房,此房后来被拆除重建。

1918年带走廊的砖房设计图,没有兴建

1918年兴建的临时木屋立面与平面图
1923年,业主变为Р.Г.波列茨卡娅(Р.Г.Порпцкая),期间,中国人张希火(俄文音译)租赁她在端街上的门市房,经营面包房。当年7月30日,哈尔滨市公议会工程与卫生检查组检查面包房,检查记录如下:
检查组成员:
主席为市公议会成员
成员:城市建筑师、市防疫医师Н.Ф.Суторихин、市总电力师В.Ф.Федоров、市消防队长及新埠头地段警察局代表。
检查了波列茨卡娅所有的短街15号969地块上的中国公民张希火开设的面包房,发现如下问题:
1、房间内的必须安装防蝇网,与框楞之间的缝隙堵塞严密;面包房及营业室的门应安设弹簧;
3、营业室内的面包架重新做成玻璃门的封闭柜;
指令如下:
面包房认可其符合要求,允许营业。但其前提是近期完成本记录第2、3条的要求,并按照已经由市公议会批准(第132号议程),1922年11月8日第105号记录,提交本应在1923年春季前完成的面包房和整个地块的平面图。
张希火面包房所在的门市房建于1918年,长14.1米,宽4.28米,建筑面积60平米。作为面包房后分为前、后两个房间,前室临街面,是营业室,后室是制作面包的房间,砌有一座面包炉。

1923年7月30日的检查记录

面包房房屋立面

面包房房屋平面图
1924年,面包房已经停业。此时的业主已是И.М.别列霍维奇(И.М.Берхович),面包房所在房屋之前一直作为非居住用房,业主欲将面包炉拆除,改为居住用房,建筑科发现并制止,下文要求恢复原貌。最终,这处房屋还是成为居住用房。别列霍维奇是犹太人,据史料记载他1946年去世,葬于哈尔滨犹太墓地。
1924年,第969号地块上还是五座房屋、一个小木棚,分别为端街街面上1903年始建、1909年外砌砖墙的平房和已改成住宅的门市房,院内三座木房,其中院内东侧的木房已经改建,占用原木棚部分,扩大了面积。
1928年,第969地块上的建筑数量没有变化,只是1906年始建的第二座木屋又改建扩大了。

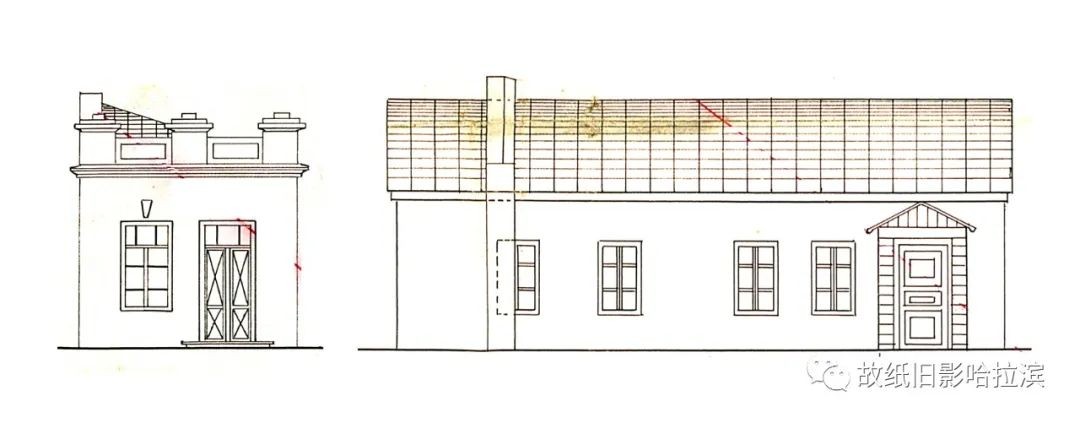
1928年,端街一侧最早兴建的房屋立面与平面图

1928年,曾作为面包房的门市房已经成为住宅,立面与平面图

1928年,院内原面包房后面的木房立面与平面图

1928年,院内西侧木房立面与平面图

1928年,院内最里侧的木房,也是1906年始建木屋所在位置的建筑,立面与平面图

1928年,院内地块南边界上的两处木板棚立面与平面图

1928年,院内室外木制厕所图

1929年,在板棚位置兴建的小旅店用房立面与平面图
1929年,第969号地块迎来了他第四任业主Н.П.热文(Н.П.Жевин),1924年时他居住在霞曼街,但是已经在第969号地购置了房产。1929年,他将院内最里侧的两个板棚拆除,建造了一座一层L型的营业性用房,在此开设小旅店。设计图显示,旅店用房建筑面积140余平米,有大小14间房。此小旅店至1938年时还存在。热文也是犹太人,1947年去世,葬于哈尔滨犹太墓地。
1929年时,第969号地块上的建筑已基本完成,有大小房屋六座,其中端街一侧住宅两处,院内小旅馆用房一处,木房三座。

1938年哈尔滨房产地业主公会 第1108号文件

1938年抵押权抹消登记申请书

1938年哈尔滨地图上,端街街牌号,路南由东至西为2至44号,2号为现端街2号门洞处(原为楼梯间,通向二楼),44号即为现尚志幼儿园处
1930年代,该地块门牌为端街44号,业主还是热文。至1938年,第969号地块上一直是7座平房,有各式房屋31间。

1903年至1929年,第969号地块上建筑变迁示意图

1950年代初端街街景,红色箭头处为亚细亚旅馆,其东侧即为第969号地块

根据建筑图复原的第969号地块端街街面建筑示意图
1994年,该地块原有建筑拆除,新建五层楼房。1995年,对面的尚志幼儿园迁入新址。
2020年8月9日,端街博物馆接待了一位李先生,1950年代初生人,他曾经就住在原端街44号院内,从1950年代一直住到1990年代初动迁。
据他回忆,端街44号院有十四、五户住户,房子有砖房和板加泥两种,他家住在院内。临街西侧靠近亚细亚大楼的是一座砖房,它与亚细亚大楼并不连接,两者之间有个空隙,立着刷成绿色的板障子。这座砖房住着两家,一家姓李,一家姓朱,李家的房门带有门斗,是端街44号唯一房门在街面上的。它旁边就是通向院内的院门,是木门。院门东侧也是一座砖房,外墙刷着黄色,进户门在院内,住户姓李。
李先生的描述证实,李、朱两户所住的砖房是1903年始建的房子,院门东侧的则是始建于1918年曾做过面包房的房子,临街的门已经被封上,改走院内了。
现端街46号地段的变迁,也是城市发展的一个缩影,在端街120周年(1902-2022)之际,端街博物馆特举办特展,展出了哈尔滨城史文物馆所藏原端街44号建筑档案,包括建房审批文件、建筑图纸等历史遗存50余件。




感谢哈尔滨城史文物馆提供原始建筑图纸
感谢李斌老师提供俄文翻译支持。
来源: 故纸旧影哈拉滨微信公众号